1077 Zucchini Terrace, San Jose, CA 95133

  • $998,000
  • 2 Bedrooms
  • 2.5 Bathrooms
  • 1,341 Sq/ft

Details

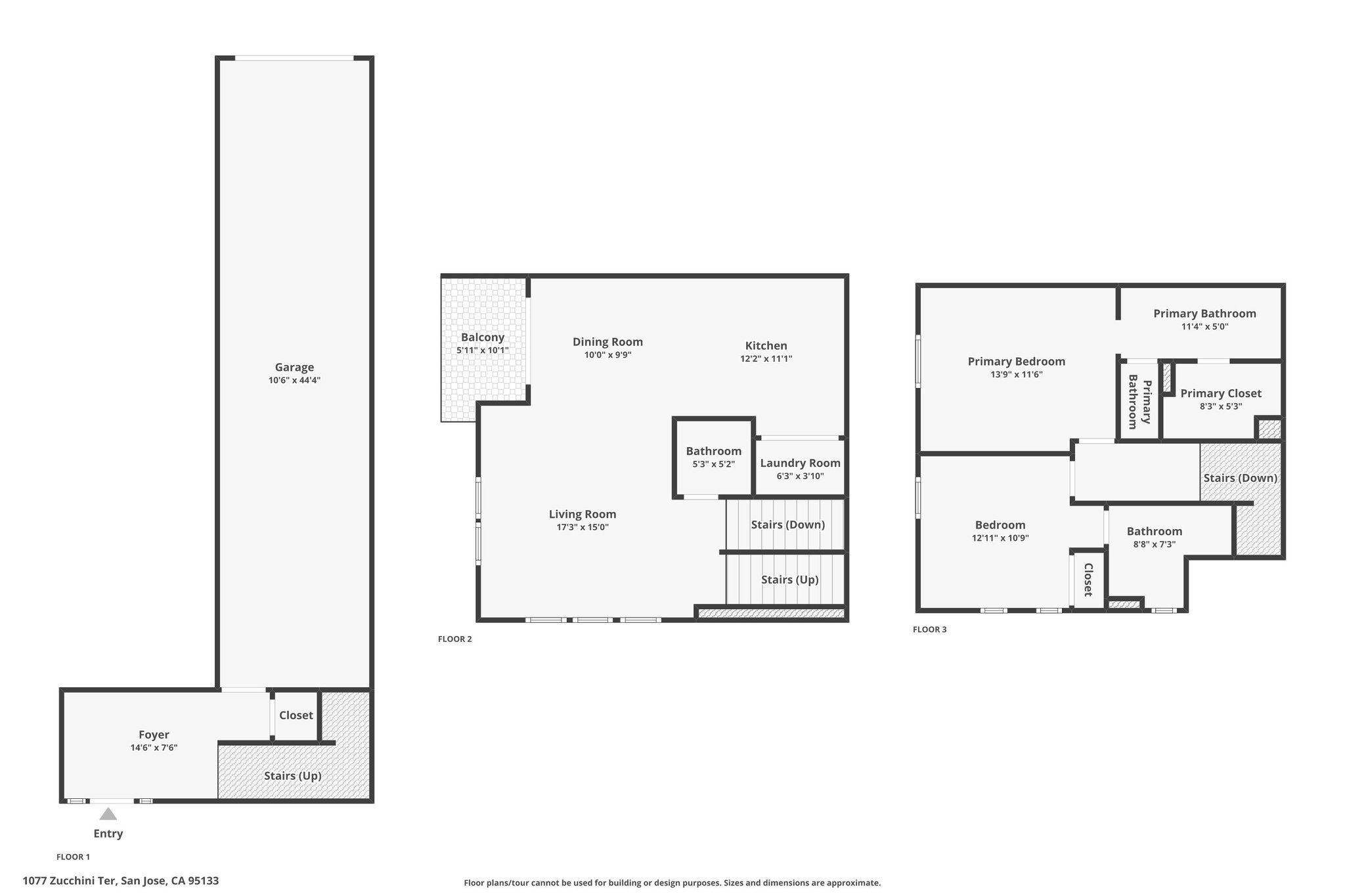
Welcome to 1077 Zucchini Terrace, located in the highly desirable Cherry Blossom at Pepper Tree community. This sought after two-bedroom floorplan offers approximately 1,341 sq ft of thoughtfully designed living space. This end, corner unit provides exceptional privacy with only one shared wall and is filled with natural light from an abundance of extra windows. The main level features hardwood flooring, recessed lighting, and a spacious living area that flows seamlessly into the dining and kitchen spaces, creating an ideal layout for both everyday living and entertaining. The kitchen is appointed with granite countertops, ample cabinetry, and updated appliances. Just off the dining area, enjoy a private patio perfect for relaxing and enjoying upcoming summer evenings.
Upstairs, both bedrooms feature en-suite bathrooms, offering comfort and functionality. Additional highlights include indoor laundry, an attached two car garage, new interior paint, new carpeting, a tankless water heater, and central heating and air conditioning. Enjoy community amenities including playgrounds, greenbelts, and a clubhouse, all conveniently located near commute routes, tech campuses, shopping, dining, and so much more. It's time to call 1077 Zucchini Terrace your HOME!

  • $998,000
  • 2 Bedrooms
  • 2.5 Bathrooms
  • 1,341 Sq/ft
  • 2 Parking Spots
  • Built in 2013

Images

3D Tour

Videos

Floor Plans

Contact

Feel free to contact us for more details!